Nov 25, 2025
Quality & Service: Redsun's Abuja Project Shipped
In golden November, the comprehensive entertainment equipment project of Beijing Redsun Bowling Technology Co., Ltd. for Abuja, Nigeria was successfully packed. The loading was completed at the Hebei Langfang production base on November 23rd and the shipment will set sail on November 30th.
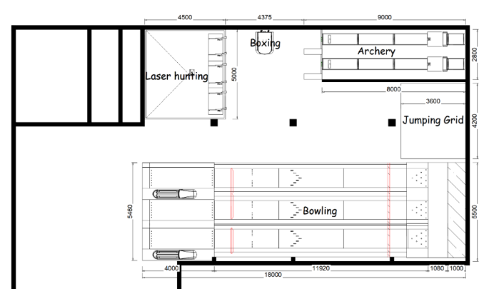
The delivered equipment includes 3 lanes of bowling equipment, archery facilities, an immersive laser hunting system, and other diverse entertainment devices.

Floor plan for Nigeria customer
The customer initially had concerns about purchasing products from China. However, after their friend conducted an on-site inspection at Redsun's professional showroom, in Panyu, Guangzhou—experiencing the high-quality equipment and customized solutions firsthand—all doubts were alleviated, and the cooperation was confirmed immediately.

Confirm the floor plan details
On the day of loading, the customer's friend made a special trip to supervise the entire process. The team completed the standardized loading in just 70 minutes, earning high recognition.


This project marks an important milestone in Redsun's overseas market expansion, demonstrating the strength of China's intelligent manufacturing. In the future, the Red Sun company will continue to expand its global presence.
Some friends from different country and regions planning to open a bowling alley may assume they can buy bowling equipment near their home.
This is not the case. Bowling equipment is manufactured in only a few countries worldwide, such as the United States, China, and Germany.
Thus, people from most countries who want to purchase bowling equipment need to look for suppliers in these countries.
Beijing Redsun Bowling Technology Co., Ltd is located in Beijing, China, with a showroom in Guangzhou, China. We also have distributors in several countries in the Middle East and Europe.
Bowling equipment is generally shipped from our factory in Beijing to the nearby port of Tianjin, where it's then shipped to your destination.
Our installation engineers can travel to various countries and regions around the world to install and commission bowling equipment.
So, if you're looking to purchase bowling equipment from anywhere in the world, please feel free to contact us. We offer high-quality, affordable bowling equipment, meticulous installation services, and consistent after-sales service.
Red Sun pinsetter is a string-type bowling equipment. Red Sun string bowling equipment
It uses strings for transmission to arrange the bowling pins.
This equipment has the following advantages:
1. Pin setting speed is more than 40% faster than traditional free-fall pinsetters.
2. Simple mechanical structure with extremely low failure rate.
3. No need for professional technicians for maintenance; general staff can master equipment operation and maintenance after simple training.
4. Low noise and low energy consumption during operation.
5. Powerful electronic control system; the reset button can solve most operational problems.

The Red Sun String bowling Equipment report the fault code, when the string bowling pinsetter operation.
How to analyze the bowling equipment failure through fault codes? How to solve the problem?
As follow let us analyze and solve them one by one.
The fault code --from 40 to 49 show from the pin 1 to pin 10-- shows the pin has been put down which one should be lock.
Fault code and pin series comparison relationship is as follows
Fault Code | Pin No. | Existing Status | Correct Status |
40 | Pin 1 | Falling | Should not falling |
41 | Pin 2 | Falling | Should not falling |
42 | Pin 3 | Falling | Should not falling |
. | . | . | . |
49 | Pin 10 | Falling | Should not falling |
Let check the quiz question
In the bowling play, the first ball knock down the bowling pin 1 2 3 5 7.
The pin 4 6 8 9 10 keep stand.
Before the player play the second bowling ball,the pinsetter reset the bowling pin 4 5 6 8 9 10。
Please answer the bowling lane should report what fault code ?
The Answer is report fault code 44.
Why? Because the first ball have knocked down the pin 5 , before play the second bowling ball the pin 5 should not be lay down.
The pin 5 cable did not be lock by the white lock block(ZC 004 is the white lock block).
How to check this fault?
1.The white block (ZC004) move no smoothly. ---Loosen the fixing screw(ZC004 fix screw) of the white lock block.
Follow is String Bowling Pinsetter Lock pin's cable device

Our company is near Tianjin Xingang Port, China, so we delivery these bowling goods to all world from Tianjin Xingang of China. 2 lanes complete bowling equipment need one 20 feet container. 4 lanes complete bowling equipment need one 40 feet container. All components are securely packed in reinforced cartons for safe transportation to your venue.
Bowling sports can help to relieve modern society people's potential destructive desires and ease the work pressure.
Regardless of age, genderand children can participate, regardless of personal physical fitness is good or bad, can get good results.
It makes up the daily life and work lack of exercise.
Bowling sports are not affected by weather or seasonal influence.
Bowling is long unfading sport , bowling alley is a civilized social place.
According to the calculation, participate in bowling exercise and can be compared with several common sports exercise comparison.
Leave your contact information, Red Sun Bowling will give the detailed reply within 24 hours.
As an experienced full-service whole set bowling equipment manufacturer and solutions provider, we have supplied more than 10000+ lanes worldwide in past years, breaking the single situation of pinsetter bowling equipment, enriching the international market, and offering the customers a wider range of choices.